Знать не будет у нг 450 парковочных мест у дома, знать будет как у соседей. вот чаго прятали проект. Ха ха ха. Натусик епта разберись! чаго они хулиганют, тебя какахой выставлять, тыж обещала. )))
Жорик угомонись, ты где увидел, что не будет 504 машиноместа? Где там это написано? Нет никакой конкретики, но вам выгодно все это повернуть так, как Вам хочется. Конкретно укажите, где Вы это увидели?
Жорик угомонись, ты где увидел, что не будет 504 машиноместа? Где там это написано? Нет никакой конкретики, но вам выгодно все это повернуть так, как Вам хочется. Конкретно укажите, где Вы это увидели?
Натуся пора исчезать или логин менять. На свой макет посмотрите и на проект (постановление) ничего не замечаете?
Натуся пора исчезать или логин менять. На свой макет посмотрите и на проект (постановление) ничего не замечаете?
Нет ничего. Если вы видите конкретные изменения, то в чем сложность на них указать наглядно? И с чего это я должна исчезнуть? Я как никто другой заинтересована, чтобы застройщик выполнил свои обещания и чтобы все построил, что было обещано.
Реклама. Рекламодатель и Застройщик ООО «Специализированный Застройщик «Сокольнический Вал 2А», ИНН 9718108889. Ипотека предоставляется банком-партнером ПАО «ВТБ», лицензия банка Nº 1000. Ставка от 0,1% годовых на первые 12 мес. при выполнении условий программы. Срок кредита от 1 года до 30 лет. Первоначальный взнос от 20,1%. Платеж 43 000 р./мес. возможен при покупке квартиры стоимостью 19 млн руб, с первоначальным взносом 20,1% в течение первых 12 месяцев. Подробности на сайте solos.moscow и на сайте банка: https://www.vtb.ru/personal/ipoteka/novostrojki/. Проектная декларация наш.дом.рф. Не является публичной офертой.
Платеж от 43 000 руб./мес.
Квартиры бизнес-класса, с обзорным видом 270° у парка "Сокольники". Приватный и безопасный двор.
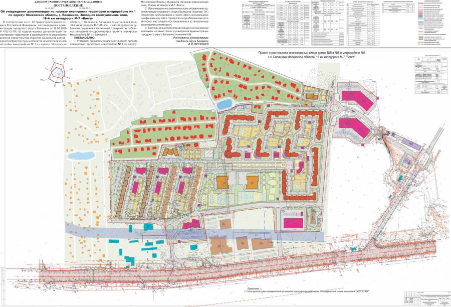
Наконец утвердили план планировки города Балашиха, вот теперь у застройщика точно нужно требовать официальный план планировки дворов Новогиреевского. Но то, что с парковкой все равно все плохо будет, уже всем понятно.
Жорик угомонись, ты где увидел, что не будет 504 машиноместа? Где там это написано? Нет никакой конкретики, но вам выгодно все это повернуть так, как Вам хочется. Конкретно укажите, где Вы это увидели?
Текст постановления в студию, не понять на чем основываете свои утверждения о парковочных местах. О чем говорит смена постановления - ни о чем, там может быть что угодно) И то что Постановление от 2011 года ни о чем не говорит, скиньте текст, искал не нашел, надо в специализированных правовых системах посмотреть, так не ищет.
Если не хватат кой чего, чтоб нэтом пользоваться и доки рыть, хотяб на местных не перли, а слушали и внимали с почтением. Рыбки вы наши.
Наконец утвердили план планировки города Балашиха, вот теперь у застройщика точно нужно требовать официальный план планировки дворов Новогиреевского. Но то, что с парковкой все равно все плохо будет, уже всем понятно.
никаких новых поставновление на сайте администрации Балашихи нет! !!
Люди, вас два человека, Дмитрий и Ямаки вводят в заблуждение, водят за нос как хотят, а остальные троли типа жорика им поддакивают. На вашем плане, Дмитрий, ничего не видно и ничего разобрать нельзя. ссылки вы не кидаете, значит обманываете!
никаких новых поставновление на сайте администрации Балашихи нет! !!
Люди, вас два человека, Дмитрий и Ямаки вводят в заблуждение, водят за нос как хотят, а остальные троли типа жорика им поддакивают. На вашем плане, Дмитрий, ничего не видно и ничего разобрать нельзя. ссылки вы не кидаете, значит обманываете!
Каких новых постановлений? Почитай ветку, сделай для себя открытие Включи мозг и найди постановление (которое у вас указано в декларации) он же план в поисковике, тут разрешение не дает в истинном формате его опубликовать. Программа сайта и сделала его в таком формате!
Наконец утвердили план планировки города Балашиха, вот теперь у застройщика точно нужно требовать официальный план планировки дворов Новогиреевского. Но то, что с парковкой все равно все плохо будет, уже всем понятно.
Интересно. Они его сверстали с учетом проекта 2011 года или опять оспоренные изменения всунули? Я уже не слежу за темой, но очень интересно как администрация будет судебное решение обходить.
никаких новых поставновление на сайте администрации Балашихи нет! !!
Люди, вас два человека, Дмитрий и Ямаки вводят в заблуждение, водят за нос как хотят, а остальные троли типа жорика им поддакивают. На вашем плане, Дмитрий, ничего не видно и ничего разобрать нельзя. ссылки вы не кидаете, значит обманываете!
Интересно. Они его сверстали с учетом проекта 2011 года или опять оспоренные изменения всунули? Я уже не слежу за темой, но очень интересно как администрация будет судебное решение обходить.
ну хорошо, наш двор будет по старому постановлению, а в остальном то как быть? Земля то продана! Петрович не снести.
ну хорошо, наш двор будет по старому постановлению, а в остальном то как быть? Земля то продана! Петрович не снести.
Вот это вопрос! Может лидер временно старое постановление в декларацию засунул, а сейчас новый какой пойдет.... Следите за изменениями в декларации. Если оставят по старому будет серьезный транспортный коллапс в районе.
Вот это вопрос! Может лидер временно старое постановление в декларацию засунул, а сейчас новый какой пойдет.... Следите за изменениями в декларации. Если оставят по старому будет серьезный транспортный коллапс в районе.
Если это правда, то я разорву дду, уйду в измайловский лес! Но я не верю! Такого не может быть! Тут какая то ошибка или цирк! Дмитрий тебе какой резон нам "помогать"?! Чего плохо живётся у пика?!
У вас, что стокгольмский синдром у всех? Благодарите за помощь не меня, а того кто нашел изменение в декларации. Вам же самим это не под силу было.
Живется, ну пока что не живется. Жду завершение ремонта. Строители забор ставят, у пика все дома теперь с закрытой территорией. Пройти на территорию только по карте можно. Кстати мало чего общего с таблеткой.
Ааа понятно! Идейный ))
На следующей неделе заскочу в офис узнаю что за шняга с парковкой. Поставю точки. Больше интереса у тебя у нас нет? Может еще что придумал?
Ааа понятно! Идейный ))
На следующей неделе заскочу в офис узнаю что за шняга с парковкой. Поставю точки. Больше интереса у тебя у нас нет? Может еще что придумал?
Пузыри пускать с вами нет интереса. Будет фактура поговорим.
Хихикайте где нибудь в другом месте, это какая то ошибка, что то там намудрил Лидер, но уверена, что скоро все разъясниться. Не понимаю Вашего злорадства, Вы то каким боком относитесь к нашему ЖК? Нам обещали 504 места, уверена, что так и будет.
Окла ВИЖН — Высокий стандарт комфорта
Квартиры от 12,1 млн ₽. Высокие потолки. Дизайнерские холлы. Сдача в 2026 году.
ПодробнееПлатеж от 43 000 руб./мес.
Квартиры бизнес-класса, с обзорным видом 270° у парка "Сокольники". Приватный и безопасный двор.
ПодробнееЛевел Войковская
Чёрная пятница. Скидка 25% Семейный проект бизнес-класса. Большой выбор удобных планировок и развитая внутренняя инфраструктура.
ПодробнееЛевел Нижегородская
Чёрная пятница. Скидка 40%. 10 минут пешком до метро «Нижегородская».
ПодробнееЖК ВЕЙВ. Квартал бизнес-класса
Квартиры по ценам прошлого! Собственная набережная с парком. Рассрочка. м. Борисово
ПодробнееКвартиры в Приморском районе от 7 млн.р
Квартиры комфорт-класса со скидкой 8,5% при 100% оплате! 10 минут на транспорте до метро «Озерки».
ПодробнееЛевел Звенигородская
Чёрная пятница. Скидка 40%. Виды на реку и Москва-Сити.
ПодробнееЛевел Павелецкая Сити
Чёрная пятница. Скидка 20%. Жилой комплекс бизнес-класса.
ПодробнееЖК Лучи. 5 мин. до м. Солнцево.
Квартиры по ценам прошлого! Зеленое окружение. Район ЗАО. м.Солнцево
ПодробнееЛевел Академическая
Чёрная пятница. Скидка 40%. Дом сдан. Ключи в день покупки.
ПодробнееЛевел Мичуринский
Чёрная пятница. Скидка 40%. В 10 минутах от метро «Мичуринский проспект».
ПодробнееЛевел Бауманская
Чёрная пятница. Скидка 40%. Проект бизнес-класса рядом с набережной Яузы. Дом сдан.
Подробнее